情報更新日:2025年07月10日/広告有効期限:なし
表示閲覧回数(過去30日間):13
お急ぎの方はお電話からお気軽にどうぞ!
053-488-8811 営業時間 / 9:00〜18:00 定休日 / 水曜日・日曜日
>物件詳細情報
| 基本情報 | |
|---|---|
| 物件番号 | 10007805159 |
| 店舗形態 | 事務所 |
| オススメ業種 | 事務所 |
| 物件名 | アーバンスクエア浜松ビル 4F |
| 物件の状態 | 空き |
| 引越し時期 | 相談 |
| 契約形態と期間 |
普通契約期間:3年間 |
| 所在地・交通 | |
|---|---|
| 所在地 | 静岡県浜松市中央区連尺町-314-31 |
| 交 通1 | 遠州鉄道新浜松駅 徒歩10分 |
| 交 通2 | - |
| 賃料 | |
|---|---|
| 賃 料 | 784,575円(税込) |
| 敷 金 |
10ヶ月 |
| その他 | |
|---|---|
| 備考 | ■セキュリティ:セコム・機械警備連動 ■駐車場:有/立体駐車場(税別20,000円) ■袖看板:要確認(有料) |
| 建物 | |
|---|---|
| 建物構造 | 鉄骨鉄筋コンクリート造 |
| 建物階建て |
地上9階 |
| 施工年月 | 1991(平成3)年 08月 |
| 募集物件の階数 | 地上 4階 |
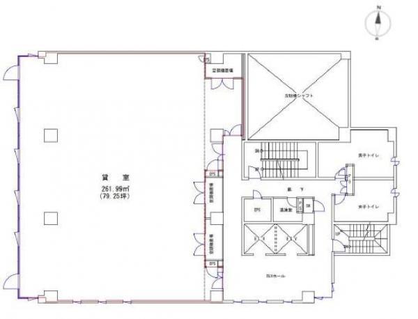
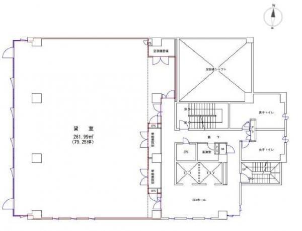
| 契約面積 | 261.99m2(79.25坪) |
| 設備 | |
|---|---|
| エレベータ | 有 |
| エアコン | 有 |
| トイレ | 有/共用 |
| 駐車場 | |
|---|---|
| 状 況 | 空有 |
| 駐車料金 | 22,000円(税込) |
| 取引情報 | |
|---|---|
| 取引態様 | 媒介 |
| 客付 | 可 |
この物件をチェックした人はこんな物件も見ています
- JR浜松駅まで徒歩5分、遠州鉄道第一通り駅まで徒歩3分、遠鉄バス停留所まで徒歩1分と交通アクセス良好です。敷地内機械式駐車場あり。空き状況はお問合せください。(車高制限あり)

静岡県浜松市中央区田町-330-5
142.96m2(43.25坪)
429,000円(税込)
- 電車通り沿い!遠州鉄道八幡駅至近!外観もお洒落な店舗です♪

静岡県浜松市中央区八幡町-190-1
53.04m2(16.04坪)
165,000円(税込)
- ★☆静岡県西部のお部屋探しは地元密着・信頼の『遠鉄の不動産』におまかせ☆★お気軽にお問合せください!!

静岡県浜松市中央区元城町-219-21
53.40m2(16.15坪)
70,000円(税込)
- ゆりの木通りに面した、テナントビルの貸店舗です。バー、などの飲食店やエステサロン、物販におススメな物件です

静岡県浜松市中央区神明町-218ー18
88.66m2(26.82坪)
198,000円(税込)
- 大通り沿いの自動車ディーラー跡です。広々とした敷地や整備された駐車場も多数駐車可能です。大型商業施設も近隣にあるので、人や車の流れも多く、集客力が高いエリアです。

静岡県浜松市中央区志都呂町1-25-14
709.89m2(214.74坪)
1,906,300円(税込)
今日チェックした物件
- おしゃれなマンションの1階の1区画☆エステの方に向いてます☆お客様駐車場共有であります☆☆☆女性・お子様のお客様中心の店舗に限ります☆☆※営業時間、遅い時間はNG
-

静岡県浜松市中央区三方原町-2159-3
34.65m2(10.48坪)
90,000円(税込)
- 袋井市泉町に新しいトランクルームができました!!★サイズは選べる4パターン・ドアタイプ小2戸: 【約0,6帖】(NO.1~2:税込3,500円)・ドアタイプ中5戸: 【約1,2帖】(NO.3~7:税込:6,500円)・シャッタータイプ3戸: 【約2,4帖】(NO.12~14:税込11,000円)・ドアタイプ大12戸: 【約1,8帖】(NO.8~11 NO.15~22:税込8,500円)お問い合わせはお気軽に、遠鉄の不動産まで!!
-

静岡県袋井市泉町2-5-9
3.08m2(0.93坪)
8,500円(税込)
お急ぎの方はお電話からお気軽にどうぞ!
053-488-8811 営業時間 / 9:00〜18:00 定休日 / 水曜日・日曜日


053-488-8811













053-488-8811