浜松静岡のオフィス向け貸事務所(オフィス)やオフィスビル、飲食店や物販店舗向けテナント物件を多数紹介

お問い合わせ

情報更新日:2025年07月18日/広告有効期限:なし

表示閲覧回数(過去30日間):19

第一伊藤ビル 7-B

お問い合わせ
お気に入りリスト
  • お気に入りに追加
  • 概算費用計算
  • 物件資料
  • 印刷する

浜松駅より徒歩1分の事務所です!

事務所 
物件名 第一伊藤ビル 7-B
賃 料 189,420円(坪単価 @6,600円)
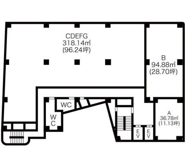
面 積 94.88m2(28.70坪)
共益費・管理費 94,710円(税込)
所在地 静岡県浜松市中央区砂山町-324-1
アクセス1 JR東海道本線浜松駅 徒歩1分
アクセス2 -
  • 物件詳細情報
  • 物件資料
  • お気に入りに追加
  • 概算費用計算
  • 印刷する

お問い合わせ

お急ぎの方はお電話からお気軽にどうぞ!

053-488-8811 営業時間 / 9:00〜18:00 定休日 / 水曜日・日曜日

物件検索TOPに戻る

>物件詳細情報

  • お気に入りに追加
  • お気に入りに追加
  • 概算費用計算
  • 物件資料
  • 印刷する
基本情報
物件番号 10007805189
店舗形態 事務所
オススメ業種 事務所
物件名 第一伊藤ビル 7-B
物件の状態 空き
引越し時期 相談
契約形態と期間 普通契約期間:2年間
所在地・交通
所在地 静岡県浜松市中央区砂山町-324-1
交 通1 JR東海道本線浜松駅 徒歩1分
交 通2 -
賃料
賃 料 189,420円(税込)
敷 金
5ヶ月
共益費・管理費 94,710円(税込)
その他
備考 ・AM7:00~PM10:00 ・個別空調・貸会議室あり ・タワー式駐車場(AM7:00~PM10:00)
建物
建物構造 鉄骨鉄筋コンクリート造
建物階建て
地上9階   地下1階
施工年月 1986(昭和61)年 01月  
募集物件の階数 地上 7階  B号室
契約面積 94.88m2(28.70坪)
設備
エレベータ
トイレ 有/共用
駐車場
状 況 空有
駐車料金 22,000円(税込)
敷 金 1ヶ月
取引情報
取引態様 媒介
客付
 

この物件をチェックした人はこんな物件も見ています

大通り沿いの自動車ディーラー跡です。広々とした敷地や整備された駐車場も多数駐車可能です。大型商業施設も近隣にあるので、人や車の流れも多く、集客力が高いエリアです。

静岡県浜松市中央区志都呂町1-25-14
709.89m2(214.74坪)
1,906,300円(税込)
浜北駅構内になる待合室に面した店舗です。※終電以降は駅は閉鎖となります・0:20~5:00駅を利用される方向けの物販などに向いた物件です。水回り設備はないので、飲食店は不可となります。

静岡県浜松市浜名区沼-54-1
23.60m2(7.14坪)
165,000円(税込)
照明付きの倉庫です!個人の方の趣味の収納や小規模なビジネスの在庫管理にも適しています。

静岡県浜松市中央区葵西4-9-21
4.95m2(1.50坪)
11,000円(税込)
JR浜松駅まで徒歩5分、遠州鉄道第一通り駅まで徒歩3分、遠鉄バス停留所まで徒歩1分と交通アクセス良好です。敷地内機械式駐車場あり。空き状況はお問合せください。(車高制限あり)

静岡県浜松市中央区田町-330-5
142.96m2(43.25坪)
429,000円(税込)
フリーレント半年や期間限定賃料などお気軽にご相談・交渉下さい!(例:1年目のみ賃料100万など。)佐鳴湖パークタウンサウス内のテナント区画です。スポーツジムが入居していた区画ですので、大きなプール、風呂、シャワールームやロッカールーム、トレーニングルーム等ございます。

静岡県浜松市中央区富塚町-1933-1
4,328.69m2(1,309.43坪)
3,300,000円(税込)

今日チェックした物件

お問い合わせ

お急ぎの方はお電話からお気軽にどうぞ!

053-488-8811 営業時間 / 9:00〜18:00 定休日 / 水曜日・日曜日

物件検索TOPに戻る

Copyright©Zeus co,Ltd. All Rights Reserved.