情報更新日:2025年07月26日/広告有効期限:なし
表示閲覧回数(過去30日間):20
お急ぎの方はお電話からお気軽にどうぞ!
053-488-8811 営業時間 / 9:00〜18:00 定休日 / 水曜日・日曜日
>物件詳細情報
| 基本情報 | |
|---|---|
| 物件番号 | 10007805206 |
| 店舗形態 | 店舗, 居抜店舗, 事務所 |
| オススメ業種 | 事務所, 軽飲食, サービス業 |
| 物件名 | ロイヤルマンション元浜 105 |
| 物件の状態 | 空き |
| 引越し時期 | 即 |
| 契約形態と期間 |
普通契約期間:2年間16,500円 |
| 所在地・交通 | |
|---|---|
| 所在地 | 静岡県浜松市中央区元浜町-230-3 |
| 交 通1 | JR東海道本線浜松駅 徒歩21分 |
| 交 通2 | - |
| 賃料 | |
|---|---|
| 賃 料 | 60,500円(税込) |
| 共益費・管理費 | 3,300円(税込) |
| その他月額費用 1 | 自治会費 600円(税込) |
| 保証金 | 116,600円(税込) |
| その他 | |
|---|---|
| 備考 | ◎鍵交換費用:33,000円 ■24時間駆けつけサポート加入必須 ◎月額1,100円(税込) ※2年分一括払い16,500円(税込) ■外国人の方は外国人コール24加入必須 ◎月額1,430円(税込) ※2年分一括払い26,400円(税込) ■短期解約違約金有り ◎1年未満の解約総賃料の2ヶ月分 ◎2年未満の解約総賃料の1ヶ月 ■保険要加入 火災保険 2年契約 20,000円 ~ |
| 建物 | |
|---|---|
| 建物構造 | 鉄骨鉄筋コンクリート造 |
| 建物階建て |
地上4階 |
| 施工年月 | 1983(昭和58)年 09月 |
| 募集物件の階数 | 地上 1階 |
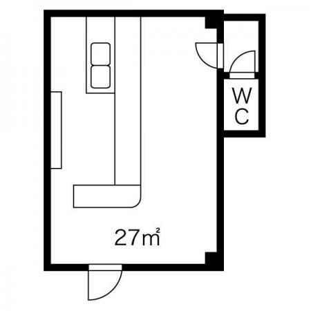
| 契約面積 | 27m2(8.17坪) |
| 設備 | |
|---|---|
| 水道 | 公営 |
| 下水道 | 公共下水 |
| ガス | LPG |
| トイレ | 有/専用 |
| 駐車場 | |
|---|---|
| 状 況 | 無し |
| 取引情報 | |
|---|---|
| 取引態様 | 媒介 |
| 客付 | 可 |
この物件をチェックした人はこんな物件も見ています
- 2023年竣工の築浅物件!袋井駅から徒歩5分と好立地!袋井駅南側は土地区画整理事業により、今後も新しい建物の建設が進んでいくエリアです。

静岡県袋井市高尾-791-2
55.50m2(16.79坪)
110,000円(税込)
- 電車通り沿い!遠州鉄道八幡駅至近!外観もお洒落な店舗です♪

静岡県浜松市中央区八幡町-190-1
53.04m2(16.04坪)
165,000円(税込)
- 遠州病院駅から徒歩3分の好立地。外観にもこだわったお洒落な建物です。敷地内に6台駐車可能。クリニック・美容院・スクール関係の事業利用にオススメ。

静岡県浜松市中央区常盤町-144-1
303.46m2(91.80坪)
1,045,000円(税込)
- 浜北駅構内になる待合室に面した店舗です。※終電以降は駅は閉鎖となります・0:20~5:00駅を利用される方向けの物販などに向いた物件です。水回り設備はないので、飲食店は不可となります。

静岡県浜松市浜名区沼-54-1
23.60m2(7.14坪)
165,000円(税込)
- フリーレント半年や期間限定賃料などお気軽にご相談・交渉下さい!(例:1年目のみ賃料100万など。)佐鳴湖パークタウンサウス内のテナント区画です。スポーツジムが入居していた区画ですので、大きなプール、風呂、シャワールームやロッカールーム、トレーニングルーム等ございます。

静岡県浜松市中央区富塚町-1933-1
4,328.69m2(1,309.43坪)
3,300,000円(税込)
今日チェックした物件
お急ぎの方はお電話からお気軽にどうぞ!
053-488-8811 営業時間 / 9:00〜18:00 定休日 / 水曜日・日曜日


053-488-8811














053-488-8811