情報更新日:2025年08月29日/広告有効期限:なし
表示閲覧回数(過去30日間):19
お急ぎの方はお電話からお気軽にどうぞ!
053-488-8811 営業時間 / 9:00〜18:00 定休日 / 水曜日・日曜日
>物件詳細情報
| 基本情報 | |
|---|---|
| 物件番号 | 10007805254 |
| 店舗形態 | 店舗, 一棟貸し, 事務所, ロードサイド |
| オススメ業種 | 医療関係, 塾・学校・教育関係, 美容関係, 事務所 |
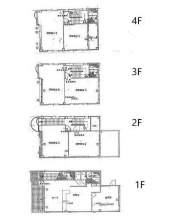
| 物件名 | 城北ビル |
| 物件の状態 | 空き |
| 引越し時期 | 相談 |
| 契約形態と期間 |
普通契約期間:5年間 |
| 所在地・交通 | |
|---|---|
| 所在地 | 静岡県浜松市中央区城北2-1-10 |
| 交 通1 | 遠州鉄道八幡駅 徒歩29分 |
| 交 通2 | - |
| 賃料 | |
|---|---|
| 賃 料 | 352,000円(税込) |
| 敷 金 |
2,112,000円 |
| 礼 金 | 352,000円(税込) |
| その他 | |
|---|---|
| 備考 | ※飲食店不可 |
| 建物 | |
|---|---|
| 建物構造 | 鉄骨造 |
| 建物階建て |
地上4階 |
| 施工年月 | 1986(昭和61)年 12月 |
| 募集物件の階数 | 地上 1-4階 |
| 契約面積 | 266.07m2(80.49坪) |
| 設備 | |
|---|---|
| トイレ | 有/専用 |
| 駐車場 | |
|---|---|
| 状 況 | 空有無料 |
| 取引情報 | |
|---|---|
| 取引態様 | 媒介 |
| 客付 | 可 |
この物件をチェックした人はこんな物件も見ています
- 電車通り沿い!遠州鉄道八幡駅至近!外観もお洒落な店舗です♪

静岡県浜松市中央区八幡町-190-1
53.04m2(16.04坪)
165,000円(税込)
- ロードサイドの1棟貸しテナントビルです!看板取り付けスペースあります!

静岡県浜松市中央区板屋町-517
188.66m2(57.07坪)
484,000円(税込)
- 遠州病院駅から徒歩3分の好立地。外観にもこだわったお洒落な建物です。敷地内に6台駐車可能。クリニック・美容院・スクール関係の事業利用にオススメ。

静岡県浜松市中央区常盤町-144-1
303.46m2(91.80坪)
1,045,000円(税込)
- 浜北駅構内になる待合室に面した店舗です。※終電以降は駅は閉鎖となります・0:20~5:00駅を利用される方向けの物販などに向いた物件です。水回り設備はないので、飲食店は不可となります。

静岡県浜松市浜名区沼-54-1
23.60m2(7.14坪)
165,000円(税込)
- フリーレント半年や期間限定賃料などお気軽にご相談・交渉下さい!(例:1年目のみ賃料100万など。)佐鳴湖パークタウンサウス内のテナント区画です。スポーツジムが入居していた区画ですので、大きなプール、風呂、シャワールームやロッカールーム、トレーニングルーム等ございます。

静岡県浜松市中央区富塚町-1933-1
4,328.69m2(1,309.43坪)
3,300,000円(税込)
今日チェックした物件
- 浜松駅徒歩圏内でアクセス良好です!
-

静岡県浜松市中央区鍛冶町-140-2
180.62m2(54.64坪)
480,744円(税込)
- 有楽街に位置する複合テナントビルのご紹介です。B1~4Fまでは飲食店などのお店フロア、5Fは事務所フロアとしての募集です。エレベーター。共用部にトイレが用意されています。5F事務所フロアは2024年4月にリフォーム工事が完了したきれいな物件です。
-

静岡県浜松市中央区鍛冶町-320-23
32.30m2(9.77坪)
134,348円(税込)
- 元焼肉屋跡の住居付店舗。現況渡しです。遠州鉄道曳馬駅まで徒歩4分です。
-

静岡県浜松市中央区曳馬5-6-32
364.29m2(110.20坪)
330,000円(税込)
- 駐車場4台付の1階事務所です!
-

静岡県浜松市中央区中田町-375
47.88m2(14.48坪)
150,000円(税込)
- 浜松駅徒歩圏内のオフィスビル!
-

静岡県浜松市中央区鍛冶町-124
50.39m2(15.24坪)
143,000円(税込)
お急ぎの方はお電話からお気軽にどうぞ!
053-488-8811 営業時間 / 9:00〜18:00 定休日 / 水曜日・日曜日


053-488-8811













053-488-8811