情報更新日:2025年08月30日/広告有効期限:なし
表示閲覧回数(過去30日間):18
お急ぎの方はお電話からお気軽にどうぞ!
053-488-8811 営業時間 / 9:00〜18:00 定休日 / 水曜日・日曜日
>物件詳細情報
| 基本情報 | |
|---|---|
| 物件番号 | 10007805275 |
| 店舗形態 | 事務所, 店舗 |
| オススメ業種 | 事務所, サービス業 |
| 物件名 | ウインズ笠井屋ビルディング 6F |
| 物件の状態 | 空き |
| 引越し時期 | 相談 |
| 契約形態と期間 |
普通契約期間:3年間55,000円 |
| 所在地・交通 | |
|---|---|
| 所在地 | 静岡県浜松市中央区田町-315-34 |
| 交 通1 | JR東海道本線浜松駅 徒歩11分 |
| 交 通2 | - |
| 賃料 | |
|---|---|
| 賃 料 | 271,000円(税込) |
| 敷 金 |
3ヶ月 |
| 礼 金 | 1ヶ月 |
| その他 | |
|---|---|
| 備考 | |
| 建物 | |
|---|---|
| 建物構造 | 鉄骨鉄筋コンクリート造 |
| 建物階建て |
地上9階 |
| 施工年月 | 1988(昭和63)年 11月 |
| 募集物件の階数 | 地上 6階 |
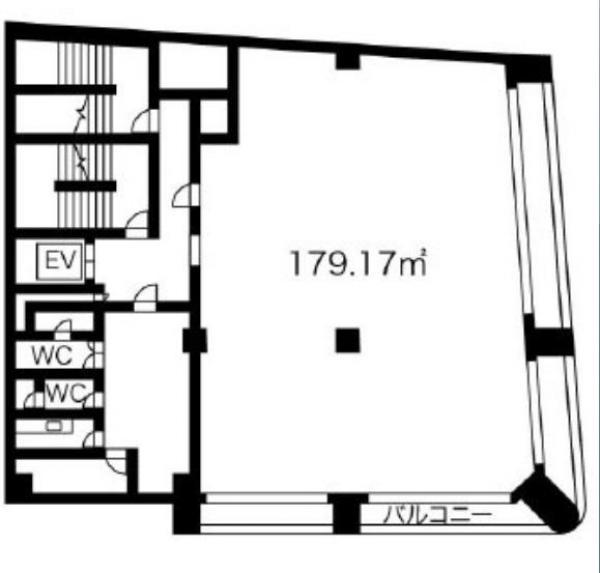
| 契約面積 | 179.17m2(54.20坪) |
| 設備 | |
|---|---|
| エレベータ | 有 |
| 駐車場 | |
|---|---|
| 状 況 | 無し |
| 取引情報 | |
|---|---|
| 取引態様 | 媒介 |
| 客付 | 可 |
この物件をチェックした人はこんな物件も見ています
- 静岡県西部のお部屋探しなら遠鉄の不動産!!

静岡県浜松市中央区鴨江2-44-23
132.76m2(40.16坪)
330,000円(税込)
- 幹線道路沿いの事務所です!建物は植松にありますので、浜松駅方面にも、浜松IC方面にもアクセスが良好です。トイレは男女ともに新品に交換してあります。駐車場も7台確保がございます!!

静岡県浜松市中央区植松町-8-4
56.75m2(17.17坪)
176,000円(税込)
- ホワイトストリート沿いの1階店舗、2階住居の物件です。1階店舗はフローリングとなっているので、エステなどサロン向きな作りです。2階は1LDKとなっており、居住でも事務所としての利用でもOKです♪

静岡県浜松市中央区佐鳴台3-54-40
95.85m2(28.99坪)
231,000円(税込)
- 浜松駅まで徒歩5分の好立地の事務所です!

静岡県浜松市中央区砂山町-335-10
93.81m2(28.38坪)
187,000円(税込)
- ★☆静岡県西部のお部屋探しは地元密着・信頼の『遠鉄の不動産』におまかせ☆★お気軽にお問合せください!!

静岡県浜松市中央区千歳町-120
44.25m2(13.39坪)
143,000円(税込)
今日チェックした物件
- 約10坪!駐車場2台無料の貸店舗!エアコンはサービス品です。
-

静岡県浜松市中央区大平台3-7-16
33.12m2(10.02坪)
120,000円(税込)
- 天龍川町☆1棟貸しビルです!JR東海「天竜川駅」まで徒歩8分。駐車場は11台無料です。
-

静岡県浜松市中央区天龍川町-1058
242.04m2(73.22坪)
352,000円(税込)
- 駅徒歩圏内の店舗です。
-

静岡県浜松市中央区千歳町-128
48.24m2(14.59坪)
132,000円(税込)
- 2階部分1DK住居付き。駐車場縦列で4台可能です!
-

静岡県浜松市中央区高丘西3-8-12
70.16m2(21.22坪)
136,500円(税込)
- 居抜き店舗です!飲食店OK!
-

静岡県浜松市中央区元浜町-230-3
27m2(8.17坪)
60,500円(税込)
お急ぎの方はお電話からお気軽にどうぞ!
053-488-8811 営業時間 / 9:00〜18:00 定休日 / 水曜日・日曜日


053-488-8811













053-488-8811