情報更新日:2025年09月08日/広告有効期限:なし
表示閲覧回数(過去30日間):39
お急ぎの方はお電話からお気軽にどうぞ!
053-488-8811 営業時間 / 9:00〜18:00 定休日 / 水曜日・日曜日
>物件詳細情報
| 基本情報 | |
|---|---|
| 物件番号 | 10007805279 |
| 店舗形態 | 店舗, 店舗(飲食店可) |
| オススメ業種 | 軽飲食, 重飲食, サービス業, 物販関係 |
| 物件名 | HI bldg. TAMACHI(エイチアイビルタマチ) 1F |
| 物件の状態 | 建設中 |
| 引越し時期 | 相談 |
| 契約形態と期間 |
普通契約期間:5年間更新料:0.50ヶ月 |
| 所在地・交通 | |
|---|---|
| 所在地 | 静岡県浜松市中央区田町-323-7 |
| 交 通1 | 遠州鉄道第一通り駅 徒歩4分 |
| 交 通2 | - |
| 賃料 | |
|---|---|
| 賃 料 | 583,000円(税込) |
| 敷 金 |
1,500,000円 |
| 共益費・管理費 | 22,000円(税込) |
| その他月額費用 1 | 警備費 13,200円(税込) |
| その他月額費用 2 | ゴミ収集費 13,200円(税込) |
| その他月額費用 3 | 自治会費 1,000円(税込) |
| 礼 金 | 1ヶ月 |
| その他 | |
|---|---|
| 備考 | ◎開業支援金100万円※契約開始日から5年以内の解約の場合は貸主に全額返金 ◎24時間サポート料:2,200円/月 (初回保証料は月額総賃料の100%・月額保証料は月額総賃料の1% ) ◎深夜営業可能・看板取り付けスペースあり ◎加入要/借家人賠償特約付火災保険 |
| 建物 | |
|---|---|
| 建物構造 | 鉄骨造 |
| 建物階建て |
地上5階 |
| 施工年月 | 2025(平成37)年 09月 |
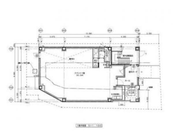
| 募集物件の階数 | 地上 1階 |
| 契約面積 | 95.20m2(28.80坪) |
| 用途地域 | 商業地域 |
| 設備 | |
|---|---|
| ガス | 都市ガス |
| エレベータ | 有 |
| エアコン | 有 |
| トイレ | 有/専用 |
| ネット環境 | 有 |
| 利用時間 | 24時間 |
| 駐車場 | |
|---|---|
| 状 況 | 無し |
| 取引情報 | |
|---|---|
| 取引態様 | 媒介 |
| 客付 | 可 |
この物件をチェックした人はこんな物件も見ています
- JR浜松駅まで徒歩5分、遠州鉄道第一通り駅まで徒歩3分、遠鉄バス停留所まで徒歩1分と交通アクセス良好です。敷地内機械式駐車場あり。空き状況はお問合せください。(車高制限あり)

静岡県浜松市中央区田町-330-5
142.96m2(43.25坪)
429,000円(税込)
- 電車通り沿い!遠州鉄道八幡駅至近!外観もお洒落な店舗です♪

静岡県浜松市中央区八幡町-190-1
53.04m2(16.04坪)
165,000円(税込)
- ★☆静岡県西部のお部屋探しは地元密着・信頼の『遠鉄の不動産』におまかせ☆★お気軽にお問合せください!!

静岡県浜松市中央区元城町-219-21
53.40m2(16.15坪)
70,000円(税込)
- 大通り沿いの自動車ディーラー跡です。広々とした敷地や整備された駐車場も多数駐車可能です。大型商業施設も近隣にあるので、人や車の流れも多く、集客力が高いエリアです。

静岡県浜松市中央区志都呂町1-25-14
709.89m2(214.74坪)
1,906,300円(税込)
- キャンペーン賃料にプラス、何かと費用がかかる事業の立ち上げに嬉しい家賃1ヶ月フリーレント!事業の開始という方以外も歓迎します!※短期違約金あり。荷物にお困りの方はぜひこちらをお使い下さい。各倉庫には個別シャッター付。安心してお預けいただけます。

静岡県浜松市中央区植松町-256-9
4.86m2(1.47坪)
8,800円(税込)
今日チェックした物件
- 上下水、給湯室、洗面所、トイレついてます。駐車場は4台無料です!
-

静岡県浜松市中央区萩丘3-1-30
66.29m2(20.05坪)
132,000円(税込)
- 有楽街に位置する複合テナントビルのご紹介です。B1~4Fまでは飲食店などのお店フロア、5Fは事務所フロアとしての募集です。エレベーター。共用部にトイレが用意されています。5F事務所フロアは2024年4月にリフォーム工事が完了したきれいな物件です。
-

静岡県浜松市中央区鍛冶町-320-23
32.30m2(9.77坪)
134,348円(税込)
- 元焼肉屋跡の住居付店舗。現況渡しです。遠州鉄道曳馬駅まで徒歩4分です。
-

静岡県浜松市中央区曳馬5-6-32
364.29m2(110.20坪)
330,000円(税込)
- 一棟貸しの4階建てビルです!
-

静岡県浜松市中央区城北2-1-10
266.07m2(80.49坪)
352,000円(税込)
- 浜松駅徒歩圏内のオフィスビル!
-

静岡県浜松市中央区鍛冶町-124
50.39m2(15.24坪)
143,000円(税込)
お急ぎの方はお電話からお気軽にどうぞ!
053-488-8811 営業時間 / 9:00〜18:00 定休日 / 水曜日・日曜日


053-488-8811
















053-488-8811