情報更新日:2025年09月23日/広告有効期限:なし
表示閲覧回数(過去30日間):31
お急ぎの方はお電話からお気軽にどうぞ!
053-488-8811 営業時間 / 9:00〜18:00 定休日 / 水曜日・日曜日
>物件詳細情報
| 基本情報 | |
|---|---|
| 物件番号 | 10007805283 |
| 店舗形態 | 居抜店舗, ロードサイド, 路面店舗 |
| オススメ業種 | 美容関係, サービス業, 物販関係, 事務所 |
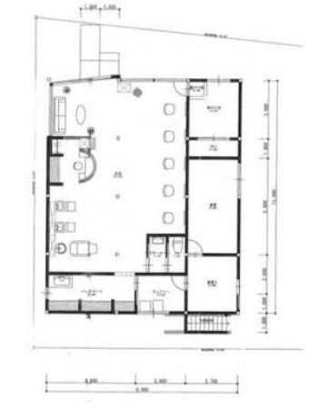
| 物件名 | 幸1丁目貸店舗(美容院居抜) |
| 物件の状態 | 入居中 |
| 引越し時期 | 相談 |
| 契約形態と期間 |
普通契約期間:3年間 |
| 所在地・交通 | |
|---|---|
| 所在地 | 静岡県浜松市中央区幸1-2-23 |
| 交 通1 | 遠州鉄道曳馬駅 徒歩26分 |
| 交 通2 | - |
| 賃料 | |
|---|---|
| 賃 料 | 220,000円(税込) |
| 保証金 | 3ヶ月 |
| その他 | |
|---|---|
| 備考 | 室内の設備は応相談です! お気軽にご連絡ください。 ※飲食店不可です。 前面ガラス張り、居抜き、飲食店不可、駐車場3台分以上 |
| 建物 | |
|---|---|
| 建物構造 | 鉄骨造 |
| 建物階建て |
地上2階 |
| 施工年月 | 1966(昭和41)年 04月 |
| 募集物件の階数 | 地上 1階 |
| 契約面積 | 96m2(29.04坪) |
| 設備 | |
|---|---|
| ガス | LPG |
| エアコン | 有 |
| 駐車場 | |
|---|---|
| 状 況 | 空有無料 |
| 空き台数 | 3台 |
| 取引情報 | |
|---|---|
| 取引態様 | 媒介 |
| 客付 | 可 |
この物件をチェックした人はこんな物件も見ています
- JR浜松駅まで徒歩5分、遠州鉄道第一通り駅まで徒歩3分、遠鉄バス停留所まで徒歩1分と交通アクセス良好です。敷地内機械式駐車場あり。空き状況はお問合せください。(車高制限あり)

静岡県浜松市中央区田町-330-5
142.96m2(43.25坪)
429,000円(税込)
- 電車通り沿い!遠州鉄道八幡駅至近!外観もお洒落な店舗です♪

静岡県浜松市中央区八幡町-190-1
53.04m2(16.04坪)
165,000円(税込)
- ★☆静岡県西部のお部屋探しは地元密着・信頼の『遠鉄の不動産』におまかせ☆★お気軽にお問合せください!!

静岡県浜松市中央区元城町-219-21
53.40m2(16.15坪)
70,000円(税込)
- ◎佐鳴湖パークタウンサウス内のテナント、バス停が目の前です◎事務所向きのお部屋ですが、倉庫としても使用できます。◎約31.6坪の整形したお部屋なので使い勝手が良いです。◎ミニキッチン付き、トイレは同じフロアに共有トイレがあります。

静岡県浜松市中央区富塚町-1933-1
104.46m2(31.60坪)
173,800円(税込)
- ゆりの木通りに面した、テナントビルの貸店舗です。バー、などの飲食店やエステサロン、物販におススメな物件です

静岡県浜松市中央区神明町-218ー18
88.66m2(26.82坪)
198,000円(税込)
今日チェックした物件
- 浜北駅から徒歩約7分♪近くにスーパーやコンビニもあり、浜北区役所へもアクセスしやすい立地です。駐車場は敷地外になります。(徒歩1分程)
-

静岡県浜松市浜名区沼-318
113.40m2(34.30坪)
143,000円(税込)
- 有楽街に位置する複合テナントビルのご紹介です。B1~4Fまでは飲食店などのお店フロア、4Fはテナントフロアとしての募集です。エレベーター。共用部にトイレが用意されています。フロアは2024年4月にリフォーム工事が完了したきれいな物件です。美容系のサロンなどにぴったりな物件です。
-

静岡県浜松市中央区鍛冶町-320-23
54.50m2(16.49坪)
226,685円(税込)
- 有楽街に位置する複合テナントビルのご紹介です。B1~4Fまでは飲食店などのお店フロア、4Fはテナントフロアとしての募集です。エレベーター。共用部にトイレが用意されています。フロアは2024年4月にリフォーム工事が完了したきれいな物件です。美容系のサロンなどにぴったりな物件です。
-

静岡県浜松市中央区鍛冶町-320-23
70.50m2(21.33坪)
293,236円(税込)
- 駅徒歩圏内の店舗です。
-

静岡県浜松市中央区千歳町-128
48.24m2(14.59坪)
110,000円(税込)
- 2026年3月完成予定の新築店舗付賃貸マンションです!天竜川駅から徒歩約8分です!
-

静岡県浜松市中央区青屋町-475-4
80.75m2(24.43坪)
275,000円(税込)
お急ぎの方はお電話からお気軽にどうぞ!
053-488-8811 営業時間 / 9:00〜18:00 定休日 / 水曜日・日曜日


053-488-8811

















053-488-8811