情報更新日:2025年10月11日/広告有効期限:なし
表示閲覧回数(過去30日間):29
お急ぎの方はお電話からお気軽にどうぞ!
053-488-8811 営業時間 / 9:00〜18:00 定休日 / 水曜日・日曜日
>物件詳細情報
| 基本情報 | |
|---|---|
| 物件番号 | 10007805285 |
| 店舗形態 | 店舗, 事務所, ロードサイド |
| オススメ業種 | 事務所, 塾・学校・教育関係, サービス業, 美容関係 |
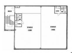
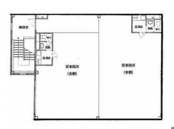
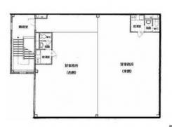
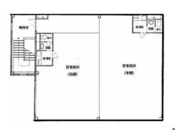
| 物件名 | 一ツ池ビル 3階西 |
| 物件の状態 | 入居中 |
| 引越し時期 | 相談 |
| 契約形態と期間 |
普通契約期間:3年間 |
| 所在地・交通 | |
|---|---|
| 所在地 | 静岡県浜松市中央区萩丘3-1-30 |
| 交 通1 | 遠州鉄道上島駅 徒歩17分 |
| 交 通2 | - |
| 賃料 | |
|---|---|
| 賃 料 | 132,000円(税込) |
| 敷 金 |
3ヶ月 |
| その他 | |
|---|---|
| 備考 | 土日・祝日利用可、飲食店不可、角部屋、最上階 賃貸保証等:加入要(ジェイリース 初回保証委託料賃料総額100% 更新保証料賃料総額10%緊急連絡先が必要です。) 上下水、給湯室、洗面所、トイレついてます。駐車場は4台無料です 借家人賠償保険加入要 賃貸保証契約必須(初回賃料総額100% 更新保証料賃料総額10% |
| 建物 | |
|---|---|
| 建物構造 | 鉄骨造 |
| 建物階建て |
地上3階 |
| 施工年月 | 2001(平成13)年 06月 |
| 募集物件の階数 | 地上 3階 |
| 契約面積 | 66.29m2(20.05坪) |
| 設備 | |
|---|---|
| トイレ | 有/専用 |
| 給湯室 | 有/専用 |
| 駐車場 | |
|---|---|
| 状 況 | 空有無料 |
| 空き台数 | 4台 |
| 取引情報 | |
|---|---|
| 取引態様 | 媒介 |
| 客付 | 可 |
この物件をチェックした人はこんな物件も見ています
- 水道料は共益費込みです。路面店で事務所等に適した物件です!!

静岡県浜松市中央区初生町-246-1
47.50m2(14.37坪)
110,000円(税込)
- ★☆静岡県西部のお部屋探しは地元密着・信頼の『遠鉄の不動産』におまかせ☆★お気軽にお問合せください!!

静岡県浜松市中央区元城町-219-21
53.40m2(16.15坪)
70,000円(税込)
- JR浜松駅まで徒歩5分、遠州鉄道第一通り駅まで徒歩3分、遠鉄バス停留所まで徒歩1分と交通アクセス良好です。敷地内機械式駐車場あり。空き状況はお問合せください。(車高制限あり)

静岡県浜松市中央区田町-330-5
142.96m2(43.25坪)
429,000円(税込)
- 電車通り沿い!遠州鉄道八幡駅至近!外観もお洒落な店舗です♪

静岡県浜松市中央区八幡町-190-1
53.04m2(16.04坪)
165,000円(税込)
- ◎佐鳴湖パークタウンサウス内のテナント、バス停が目の前です◎事務所向きのお部屋ですが、倉庫としても使用できます。◎約31.6坪の整形したお部屋なので使い勝手が良いです。◎ミニキッチン付き、トイレは同じフロアに共有トイレがあります。

静岡県浜松市中央区富塚町-1933-1
104.46m2(31.60坪)
173,800円(税込)
今日チェックした物件
- 有楽街に位置する複合テナントビルのご紹介です。B1~4Fまでは飲食店などのお店フロア、5Fは事務所フロアとしての募集です。エレベーター。共用部にトイレが用意されています。5F事務所フロアは2024年4月にリフォーム工事が完了したきれいな物件です。
-

静岡県浜松市中央区鍛冶町-320-23
32.30m2(9.77坪)
134,348円(税込)
- 元焼肉屋跡の住居付店舗。現況渡しです。遠州鉄道曳馬駅まで徒歩4分です。
-

静岡県浜松市中央区曳馬5-6-32
364.29m2(110.20坪)
330,000円(税込)
- 一棟貸しの4階建てビルです!
-

静岡県浜松市中央区城北2-1-10
266.07m2(80.49坪)
352,000円(税込)
- 駐車場4台付の1階事務所です!
-

静岡県浜松市中央区中田町-375
47.88m2(14.48坪)
150,000円(税込)
- 浜松駅徒歩圏内のオフィスビル!
-

静岡県浜松市中央区鍛冶町-124
50.39m2(15.24坪)
143,000円(税込)
お急ぎの方はお電話からお気軽にどうぞ!
053-488-8811 営業時間 / 9:00〜18:00 定休日 / 水曜日・日曜日


053-488-8811
















053-488-8811