情報更新日:2025年10月03日/広告有効期限:なし
表示閲覧回数(過去30日間):26
お急ぎの方はお電話からお気軽にどうぞ!
053-488-8811 営業時間 / 9:00〜18:00 定休日 / 水曜日・日曜日
>物件詳細情報
| 基本情報 | |
|---|---|
| 物件番号 | 10007805302 |
| 店舗形態 | 事務所, 店舗 |
| オススメ業種 | 事務所 |
| 物件名 | 沼貸事務所 1F |
| 物件の状態 | 空き |
| 引越し時期 | 相談 |
| 契約形態と期間 |
普通契約期間:3年間 |
| 所在地・交通 | |
|---|---|
| 所在地 | 静岡県浜松市浜名区沼-318 |
| 交 通1 | 遠州鉄道浜北駅 徒歩8分 |
| 交 通2 | - |
| 賃料 | |
|---|---|
| 賃 料 | 143,000円(税込) |
| 敷 金 |
3ヶ月 |
| その他 | |
|---|---|
| 備考 | 駐車場4台ですが、縦列駐車の場合8台可能です。 借家人賠償保険加入要 賃貸保証契約必須(初回賃料総額100% 更新保証料賃料総額10% 追加駐車場相談可能。 |
| 建物 | |
|---|---|
| 建物構造 | 鉄骨造 |
| 建物階建て |
地上2階 |
| 施工年月 | 1985(昭和60)年 11月 |
| 募集物件の階数 | 地上 2階 |
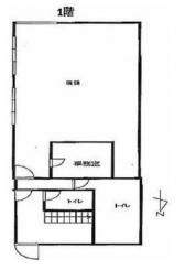
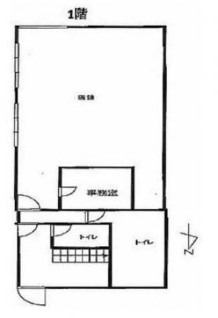
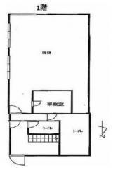
| 契約面積 | 113.40m2(34.30坪) |
| 設備 | |
|---|---|
| ガス | 都市ガス |
| トイレ | 有/共用 |
| キッチン | 有/専用 |
| 駐車場 | |
|---|---|
| 状 況 | 空有 |
| 空き台数 | 4台 |
| 取引情報 | |
|---|---|
| 取引態様 | 媒介 |
| 客付 | 可 |
この物件をチェックした人はこんな物件も見ています
- 店舗事務所への利用がおすすめ♪業種等、御相談ください!!

静岡県掛川市北門-38
112.39m2(34.00坪)
198,000円(税込)
- 電車通り沿い!遠州鉄道八幡駅至近!外観もお洒落な店舗です♪

静岡県浜松市中央区八幡町-190-1
53.04m2(16.04坪)
165,000円(税込)
- JR浜松駅まで徒歩5分、遠州鉄道第一通り駅まで徒歩3分、遠鉄バス停留所まで徒歩1分と交通アクセス良好です。敷地内機械式駐車場あり。空き状況はお問合せください。(車高制限あり)

静岡県浜松市中央区田町-330-5
142.96m2(43.25坪)
429,000円(税込)
- 照明付きの倉庫です!個人の方の趣味の収納や小規模なビジネスの在庫管理にも適しています。

静岡県浜松市中央区葵西4-9-21
4.95m2(1.50坪)
11,000円(税込)
- JR掛川駅徒歩7分の好立地の事務所です!賃料等、ご相談ください!

静岡県掛川市亀の甲1-18-3
72m2(21.78坪)
110,000円(税込)
今日チェックした物件
- 有楽街に位置する複合テナントビルのご紹介です。B1~4Fまでは飲食店などのお店フロア、4Fはテナントフロアとしての募集です。エレベーター。共用部にトイレが用意されています。フロアは2024年4月にリフォーム工事が完了したきれいな物件です。美容系のサロンなどにぴったりな物件です。
-

静岡県浜松市中央区鍛冶町-320-23
70.50m2(21.33坪)
293,236円(税込)
- 駅徒歩圏内の店舗です。
-

静岡県浜松市中央区千歳町-128
48.24m2(14.59坪)
110,000円(税込)
- 2026年3月完成予定の新築店舗付賃貸マンションです!天竜川駅から徒歩約8分です!
-

静岡県浜松市中央区青屋町-475-4
80.75m2(24.43坪)
275,000円(税込)
- スケルトン渡し、お好みのレイアウトでオープン!
-

静岡県浜松市中央区肴町-322-20
24.98m2(7.56坪)
187,000円(税込)
- ★☆静岡県西部のお部屋探しは地元密着・信頼の『遠鉄の不動産』におまかせ☆★お気軽にお問合せください!!
-

静岡県浜松市中央区神原町1-9-1
42m2(12.71坪)
66,000円(税込)
お急ぎの方はお電話からお気軽にどうぞ!
053-488-8811 営業時間 / 9:00〜18:00 定休日 / 水曜日・日曜日


053-488-8811














053-488-8811