情報更新日:2026年02月13日/広告有効期限:なし
表示閲覧回数(過去30日間):21
お急ぎの方はお電話からお気軽にどうぞ!
053-488-8811 営業時間 / 9:00〜18:00 定休日 / 水曜日・日曜日
>物件詳細情報
| 基本情報 | |
|---|---|
| 物件番号 | 10007805368 |
| 店舗形態 | 事務所, SOHOオフィス, 一棟貸し |
| オススメ業種 | |
| 物件名 | 見付事務所 1 |
| 物件の状態 | 空き |
| 引越し時期 | 相談 |
| 契約形態と期間 |
普通契約期間:2年間更新料:16,500円 |
| 所在地・交通 | |
|---|---|
| 所在地 | 静岡県磐田市見付-3933-7 |
| 交 通1 | JR東海道本線磐田駅 徒歩32分 |
| 交 通2 | - |
| 賃料 | |
|---|---|
| 賃 料 | 93,500円(税込) |
| 敷 金 |
170,000円 |
| その他 | |
|---|---|
| 備考 | DIY相談可、事務所利用(お風呂無)、駐車場敷地内3〜4台可 |
| 建物 | |
|---|---|
| 建物構造 | 木造 |
| 建物階建て |
地上2階 |
| 施工年月 | 1986(昭和61)年 01月 |
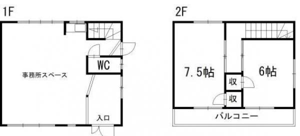
| 募集物件の階数 | 地上 1-2階 |
| 契約面積 | 63.76m2(19.29坪) |
| 用途地域 | 1種中高 |
| 設備 | |
|---|---|
| 水道 | 公営 |
| 下水道 | 公共下水 |
| ガス | 都市ガス |
| トイレ | 有/専用 |
| 駐車場 | |
|---|---|
| 状 況 | 空有無料 |
| 空き台数 | 2台 |
| 取引情報 | |
|---|---|
| 取引態様 | 媒介 |
| 客付 | 可 |
この物件をチェックした人はこんな物件も見ています
- お問合せは「遠鉄の不動産」まで!

静岡県磐田市上本郷-1006-7
118.06m2(35.71坪)
173,800円(税込)
- ミニ事務所のご案内です。これから起業される方には最適な事務所です。

静岡県浜松市中央区葵西4-9-21
11.55m2(3.49坪)
29,334円(税込)
- 二俣街道沿いで、柳通りとの交差点から北へ150m行ったところにあるミニ倉庫です。捨てるに捨てれないもの、何年かに1回しか使わないもの、シーズンオフのスポーツ用品等、さまざまな使用方法があります。

静岡県浜松市中央区高林1-1-29
2.97m2(0.90坪)
7,150円(税込)
- 道路から入りやすい店舗となります!

静岡県浜松市中央区和地町1-7-18
94.02m2(28.44坪)
215,000円(税込)
- ★☆静岡県西部のお部屋探しは地元密着・信頼の『遠鉄の不動産』におまかせ☆★お気軽にお問合せください!!

静岡県浜松市中央区元城町-219-21
175.84m2(53.19坪)
234,036円(税込)
今日チェックした物件
- 100坪超のテナント事務所の空きでました!来客時に利用できる駐車場もありオススメです♪お問い合わせは是非遠鉄の不動産まで!
-

静岡県浜松市中央区富塚町-1933-1
348.88m2(105.54坪)
812,658円(税込)
- 鷲津駅より徒歩約6分。国道沿いにある複合店舗の建物です。事務所利用でも、教室でもご利用いただけます。
-

静岡県湖西市鷲津-500
133.61m2(40.42坪)
260,000円(税込)
- キャンペーン賃料にプラス、何かと費用がかかる事業の立ち上げに嬉しい家賃1ヶ月フリーレント!事業の開始という方以外も歓迎します!※短期違約金あり。荷物にお困りの方はぜひこちらをお使い下さい。各倉庫には個別シャッター付。安心してお預けいただけます。
-

静岡県浜松市中央区植松町-256-9
4.86m2(1.47坪)
6,600円(税込)
お急ぎの方はお電話からお気軽にどうぞ!
053-488-8811 営業時間 / 9:00〜18:00 定休日 / 水曜日・日曜日


053-488-8811













053-488-8811