情報更新日:2025年06月30日/広告有効期限:なし
表示閲覧回数(過去30日間):38
お急ぎの方はお電話からお気軽にどうぞ!
053-488-8811 営業時間 / 9:00〜18:00 定休日 / 水曜日・日曜日
>物件詳細情報
| 基本情報 | |
|---|---|
| 物件番号 | 10007805010 |
| 店舗形態 | 店舗, 事務所, 路面店舗, SOHOオフィス |
| オススメ業種 | 事務所, 医療関係, 物販関係, サービス業 |
| 物件名 | スイートアイ A |
| 物件の状態 | 空き |
| 引越し時期 | 相談 |
| 契約形態と期間 |
普通契約期間:3年間 |
| 所在地・交通 | |
|---|---|
| 所在地 | 静岡県磐田市立野-2029-8 |
| 交 通1 | JR東海道本線豊田町駅 徒歩1分 |
| 交 通2 | - |
| 賃料 | |
|---|---|
| 賃 料 | 319,000円(税込) |
| 敷 金 |
5ヶ月 |
| 共益費・管理費 | 5,500円(税込) |
| その他 | |
|---|---|
| 備考 | |
| 建物 | |
|---|---|
| 建物構造 | 鉄筋コンクリート造 |
| 建物階建て |
地上5階 |
| 施工年月 | 2004(平成16)年 04月 |
| 募集物件の階数 | 地上 1階 |
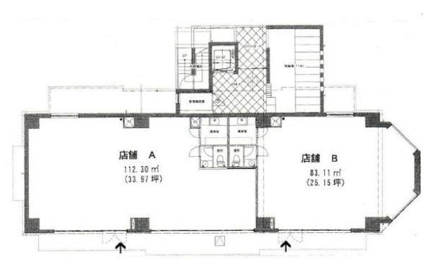
| 契約面積 | 112.30m2(33.97坪) |
| 設備 | |
|---|---|
| 水道 | 公営 |
| 下水道 | 公共下水 |
| ガス | 都市ガス |
| エアコン | 有 |
| トイレ | 有/専用 |
| 駐車場 | |
|---|---|
| 状 況 | 空有無料 |
| 空き台数 | 1台 |
| 取引情報 | |
|---|---|
| 取引態様 | 専任 |
| 客付 | 可 |
この物件をチェックした人はこんな物件も見ています
- 静岡県西部のお部屋探しなら遠鉄の不動産!!

静岡県浜松市中央区鴨江2-44-23
132.76m2(40.16坪)
330,000円(税込)
- 幹線道路沿いの事務所です!建物は植松にありますので、浜松駅方面にも、浜松IC方面にもアクセスが良好です。トイレは男女ともに新品に交換してあります。駐車場も7台確保がございます!!

静岡県浜松市中央区植松町-8-4
56.75m2(17.17坪)
176,000円(税込)
- ホワイトストリート沿いの1階店舗、2階住居の物件です。1階店舗はフローリングとなっているので、エステなどサロン向きな作りです。2階は1LDKとなっており、居住でも事務所としての利用でもOKです♪

静岡県浜松市中央区佐鳴台3-54-40
95.85m2(28.99坪)
231,000円(税込)
- 店舗事務所への利用がおすすめ♪業種等、御相談ください!!

静岡県掛川市北門-38
112.39m2(34.00坪)
198,000円(税込)
- ★☆静岡県西部のお部屋探しは地元密着・信頼の『遠鉄の不動産』におまかせ☆★お気軽にお問合せください!!

静岡県浜松市中央区千歳町-120
44.25m2(13.39坪)
143,000円(税込)
今日チェックした物件
- 97.95m2のワンフロアーの店舗です!!最上階で目立ちます。
-

静岡県浜松市中央区砂山町-352-1
97.95m2(29.63坪)
198,000円(税込)
- 三方原で事務所をお探しの方にお勧め物件です★またアクセスも、環状線など浜松の主要道路に近いためお勧めです♪
-

静岡県浜松市中央区三方原町-475--2
76.52m2(23.15坪)
103,000円(税込)
- 袋井市泉町に新しいトランクルームができました!!★サイズは選べる4パターン・ドアタイプ小2戸: 【約0,6帖】(NO.1~2:税込3,500円)・ドアタイプ中5戸: 【約1,2帖】(NO.3~7:税込:6,500円)・シャッタータイプ3戸: 【約2,4帖】(NO.12~14:税込11,000円)・ドアタイプ大12戸: 【約1,8帖】(NO.8~11 NO.15~22:税込8,500円)お問い合わせはお気軽に、遠鉄の不動産まで!!
-

静岡県袋井市泉町2-5-9
3.96m2(1.20坪)
11,000円(税込)
- キャンペーン賃料にプラス、何かと費用がかかる事業の立ち上げに嬉しい家賃1ヶ月フリーレント!事業の開始という方以外も歓迎します!※短期違約金あり。荷物にお困りの方はぜひこちらをお使い下さい。各倉庫には個別シャッター付。安心してお預けいただけます。
-

静岡県浜松市中央区植松町-256-9
4.86m2(1.47坪)
8,800円(税込)
- 袋井市泉町に新しいトランクルームができました!!★サイズは選べる4パターン・ドアタイプ小2戸: 【約0,6帖】(NO.1~2:税込3,500円)・ドアタイプ中5戸: 【約1,2帖】(NO.3~7:税込:6,500円)・シャッタータイプ3戸: 【約2,4帖】(NO.12~14:税込11,000円)・ドアタイプ大12戸: 【約1,8帖】(NO.8~11 NO.15~22:税込8,500円)お問い合わせはお気軽に、遠鉄の不動産まで!!
-

静岡県袋井市泉町2-5-9
3.08m2(0.93坪)
8,500円(税込)
お急ぎの方はお電話からお気軽にどうぞ!
053-488-8811 営業時間 / 9:00〜18:00 定休日 / 水曜日・日曜日


053-488-8811



















053-488-8811