情報更新日:2025年06月30日/広告有効期限:なし
表示閲覧回数(過去30日間):11
キャンペーン賃料にプラス、何かと費用がかかる事業の立ち上げに嬉しい家賃1ヶ月フリーレント!事業の開始という方以外も歓迎します!植松町のミニオフィス!これから独立をされる方も事業を拡大される方も、まずはここから始めてみませんか?周辺にはコンビニや各種金融機関も揃っています。また建物内には貸倉庫(別契約)もあるので、荷物の置き場にも困りません。
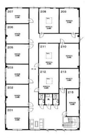
| 物件名 | b-space2(ビースペース2)事務所 213 |
|---|---|
| 賃 料 | 36,300円(坪単価 @9,260円) |
| 面 積 | 12.96m2(3.92坪) |
| 共益費・管理費 | 3,300円(税込) |
| 所在地 | 静岡県浜松市中央区植松町-256-9 |
| アクセス1 | JR東海道本線浜松駅 徒歩29分 |
| アクセス2 | - |
お急ぎの方はお電話からお気軽にどうぞ!
053-488-8811 営業時間 / 9:00〜18:00 定休日 / 水曜日・日曜日
>物件詳細情報
| 基本情報 | |
|---|---|
| 物件番号 | 10007805029 |
| 店舗形態 | 事務所, SOHOオフィス |
| オススメ業種 | 事務所 |
| 物件名 | b-space2(ビースペース2)事務所 213 |
| 物件の状態 | 空き |
| 引越し時期 | 相談 |
| 契約形態と期間 |
普通契約期間:2年間 |
| 所在地・交通 | |
|---|---|
| 所在地 | 静岡県浜松市中央区植松町-256-9 |
| 交 通1 | JR東海道本線浜松駅 徒歩29分 |
| 交 通2 | - |
| 賃料 | |
|---|---|
| 賃 料 | 36,300円(税込) |
| 敷 金 |
2ヶ月 |
| 共益費・管理費 | 3,300円(税込) |
| その他月額費用 1 | 電気料金 5,000円(税込) |
| その他 | |
|---|---|
| 備考 | |
| 建物 | |
|---|---|
| 建物構造 | 鉄骨造 |
| 建物階建て |
地上2階 |
| 施工年月 | 2007(平成19)年 06月 |
| 募集物件の階数 | 地上 2階 |
| 契約面積 | 12.96m2(3.92坪) |
| 設備 | |
|---|---|
| 水道 | 公営 |
| 下水道 | 公共下水 |
| エアコン | 有 |
| トイレ | 有/共用 |
| 照明設備 | 有 |
| 駐車場 | |
|---|---|
| 状 況 | 空有 |
| 駐車料金 | 6,600円(税込) |
| 取引情報 | |
|---|---|
| 取引態様 | 専任 |
| 客付 | 可 |
この物件をチェックした人はこんな物件も見ています
- 照明付きの倉庫です!個人の方の趣味の収納や小規模なビジネスの在庫管理にも適しています。

静岡県浜松市中央区葵西4-9-21
4.95m2(1.50坪)
11,000円(税込)
- 電車通り沿い!遠州鉄道八幡駅至近!外観もお洒落な店舗です♪

静岡県浜松市中央区八幡町-190-1
53.04m2(16.04坪)
165,000円(税込)
- JR浜松駅まで徒歩5分、遠州鉄道第一通り駅まで徒歩3分、遠鉄バス停留所まで徒歩1分と交通アクセス良好です。敷地内機械式駐車場あり。空き状況はお問合せください。(車高制限あり)

静岡県浜松市中央区田町-330-5
142.96m2(43.25坪)
429,000円(税込)
- 浜松駅から徒歩6分、好立地の事務所です!

静岡県浜松市中央区砂山町-1091
110.08m2(33.30坪)
220,000円(税込)
- 幹線道路沿いの事務所です!建物は植松にありますので、浜松駅方面にも、浜松IC方面にもアクセスが良好です。トイレは男女ともに新品に交換してあります。駐車場も7台確保がございます!!

静岡県浜松市中央区植松町-8-4
56.75m2(17.17坪)
176,000円(税込)
今日チェックした物件
- ★☆静岡県西部のお部屋探しは地元密着・信頼の『遠鉄の不動産』におまかせ☆★お気軽にお問合せください!!
-

静岡県浜松市中央区元城町-219-21
53.40m2(16.15坪)
70,000円(税込)
- 1階は室内型ゴルフ練習場、2階はスポーツジムが入っている建物です!店舗事務所部分は建物内2階にあり、トイレは共用でフロア内に用意があります。物販やサロンなどに向いています!!
-

静岡県浜松市中央区都盛町-189
37.62m2(11.38坪)
143,000円(税込)
- キャンペーン賃料にプラス、何かと費用がかかる事業の立ち上げに嬉しい家賃1ヶ月フリーレント!事業の開始という方以外も歓迎します!※短期違約金あり。荷物にお困りの方はぜひこちらをお使い下さい。各倉庫には個別シャッター付。安心してお預けいただけます。
-

静岡県浜松市中央区植松町-256-9
4.05m2(1.23坪)
7,700円(税込)
- 二俣街道沿いで、柳通りとの交差点から北へ150m行ったところにあるミニ倉庫です。捨てるに捨てれないもの、何年かに1回しか使わないもの、シーズンオフのスポーツ用品等、さまざまな使用方法があります。
-

静岡県浜松市中央区高林1-1-29
2.97m2(0.90坪)
7,150円(税込)
- 森下交差点近くの倉庫です。金融機関や買い物施設も近く、豊田町駅まで徒歩約16分!利便性あふれる立地です。
-

静岡県磐田市森下-337-3
3.30m2(1.00坪)
6,800円(税込)
お急ぎの方はお電話からお気軽にどうぞ!
053-488-8811 営業時間 / 9:00〜18:00 定休日 / 水曜日・日曜日


053-488-8811














053-488-8811