情報更新日:2026年02月10日/広告有効期限:なし
表示閲覧回数(過去30日間):16
お急ぎの方はお電話からお気軽にどうぞ!
053-488-8811 営業時間 / 9:00〜18:00 定休日 / 水曜日・日曜日
>物件詳細情報
| 基本情報 | |
|---|---|
| 物件番号 | 10007805339 |
| 店舗形態 | 事務所 |
| オススメ業種 | 事務所 |
| 物件名 | アーバンスクエア浜松ビル 6F |
| 物件の状態 | 空き |
| 引越し時期 | 相談 |
| 契約形態と期間 |
普通契約期間:3年間 |
| 所在地・交通 | |
|---|---|
| 所在地 | 静岡県浜松市中央区連尺町-314-31 |
| 交 通1 | 遠州鉄道新浜松駅 徒歩10分 |
| 交 通2 | - |
| 賃料 | |
|---|---|
| 賃 料 | 784,575円(税込) |
| 敷 金 |
10ヶ月 |
| その他 | |
|---|---|
| 備考 | ■セキュリティ:セコム・機械警備連動 ■駐車場:有/立体駐車場(税別20,000円) ■袖看板:要確認(有料) |
| 建物 | |
|---|---|
| 建物構造 | 鉄骨鉄筋コンクリート造 |
| 建物階建て |
地上9階 |
| 施工年月 | 1991(平成3)年 08月 |
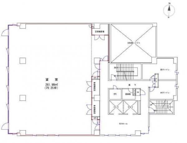
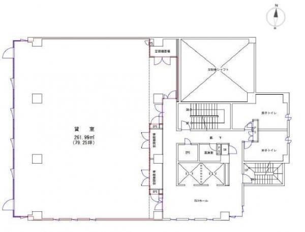
| 募集物件の階数 | 地上 6階 |
| 契約面積 | 261.99m2(79.25坪) |
| 設備 | |
|---|---|
| エレベータ | 有 |
| エアコン | 有 |
| トイレ | 有/共用 |
| 駐車場 | |
|---|---|
| 状 況 | 空有 |
| 駐車料金 | 22,000円(税込) |
| 取引情報 | |
|---|---|
| 取引態様 | 媒介 |
| 客付 | 可 |
この物件をチェックした人はこんな物件も見ています
- 住吉2丁目にある2階建て事務所!駐車場専用利用で10台ほどあります!

静岡県浜松市中央区住吉2-24-14
279.88m2(84.66坪)
418,000円(税込)
- ◎佐鳴湖パークタウンサウス内のテナント、バス停が目の前です◎事務所向きのお部屋ですが、倉庫としても使用できます。◎約31.6坪の整形したお部屋なので使い勝手が良いです。◎ミニキッチン付き、トイレは同じフロアに共有トイレがあります。

静岡県浜松市中央区富塚町-1933-1
104.46m2(31.60坪)
173,800円(税込)
- フリーレント半年や期間限定賃料などお気軽にご相談・交渉下さい!(例:1年目のみ賃料100万など。)佐鳴湖パークタウンサウス内のテナント区画です。スポーツジムが入居していた区画ですので、大きなプール、風呂、シャワールームやロッカールーム、トレーニングルーム等ございます。

静岡県浜松市中央区富塚町-1933-1
4,328.69m2(1,309.43坪)
3,300,000円(税込)
- ★☆静岡県西部のお部屋探しは地元密着・信頼の『遠鉄の不動産』におまかせ☆★お気軽にお問合せください!!

静岡県浜松市中央区元城町-219-21
92.14m2(27.87坪)
122,628円(税込)
- 浜松市のシビックコア地区に立地する、本格的オフィスビルです。1階路面の店舗・事務所です。スケルトンとなっていますので、テナントさんにて自由に内装工事ができます。エントランスの中の会社案内表示は無料です。

静岡県浜松市中央区中央2-10-1
212.38m2(64.24坪)
374,577円(税込)
今日チェックした物件
お急ぎの方はお電話からお気軽にどうぞ!
053-488-8811 営業時間 / 9:00〜18:00 定休日 / 水曜日・日曜日


053-488-8811













053-488-8811