情報更新日:2025年09月23日/広告有効期限:なし
表示閲覧回数(過去30日間):57
お急ぎの方はお電話からお気軽にどうぞ!
053-488-8811 営業時間 / 9:00〜18:00 定休日 / 水曜日・日曜日
>物件詳細情報
基本情報 | |
---|---|
物件番号 | 10007805288 |
店舗形態 | 事務所, 店舗, 一棟貸し, ロードサイド |
オススメ業種 | 物販関係, サービス業, 美容関係, 事務所 |
物件名 | 鴨江三丁目貸店舗 |
物件の状態 | 空き |
引越し時期 | 相談 |
契約形態と期間 |
普通契約期間:5年間 |
所在地・交通 | |
---|---|
所在地 | 静岡県浜松市中央区鴨江3-47-2 |
交 通1 | 遠州鉄道第一通り駅 徒歩21分 |
交 通2 | - |
賃料 | |
---|---|
賃 料 | 132,000円(税込) |
敷 金 |
3ヶ月 |
礼 金 | 1ヶ月 |
その他 | |
---|---|
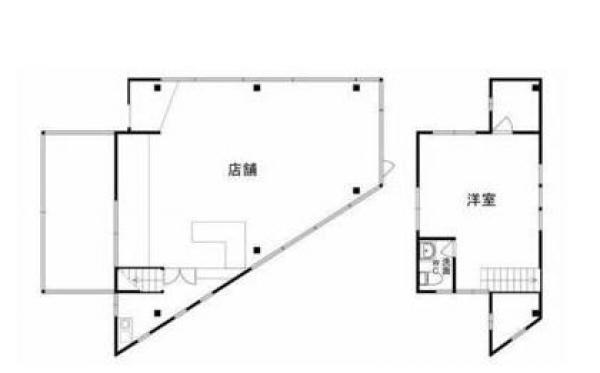
備考 | ●土日・祝日利用可、1フロア1テナント 賃貸保証等:加入要(初回保証委託料賃料総額100% 更新保証料賃料総10%) 都市計画:市街化区域 天井高3m以上で開放感のある造り。三角地で2面ガラス張りです。駐車場3~4台可能です。 借家人賠償保険加入要 賃貸保証契約必須(初回賃料総額100% 更新保証料賃料総額10%) 外壁・屋根修繕行います。(色相談可能) |
建物 | |
---|---|
建物構造 | 鉄骨造 |
建物階建て |
地上2階 |
施工年月 | 1989(平成元年)年 03月 |
募集物件の階数 | 地上 1-2階 |
契約面積 | 96.89m2(29.31坪) |
設備 | |
---|---|
トイレ | 有/専用 |
駐車場 | |
---|---|
状 況 | 空有無料 |
空き台数 | 3台 |
取引情報 | |
---|---|
取引態様 | 媒介 |
客付 | 可 |
この物件をチェックした人はこんな物件も見ています
- 静岡県西部のお部屋探しなら遠鉄の不動産!!
静岡県浜松市中央区鴨江2-44-23
132.76m2(40.16坪)
330,000円(税込)
- 幹線道路沿いの事務所です!建物は植松にありますので、浜松駅方面にも、浜松IC方面にもアクセスが良好です。トイレは男女ともに新品に交換してあります。駐車場も7台確保がございます!!
静岡県浜松市中央区植松町-8-4
56.75m2(17.17坪)
176,000円(税込)
- ホワイトストリート沿いの1階店舗、2階住居の物件です。1階店舗はフローリングとなっているので、エステなどサロン向きな作りです。2階は1LDKとなっており、居住でも事務所としての利用でもOKです♪
静岡県浜松市中央区佐鳴台3-54-40
95.85m2(28.99坪)
231,000円(税込)
- ◎佐鳴湖パークタウンサウス内のテナント、バス停が目の前です◎事務所向きのお部屋ですが、倉庫としても使用できます。◎約31.6坪の整形したお部屋なので使い勝手が良いです。◎ミニキッチン付き、トイレは同じフロアに共有トイレがあります。
静岡県浜松市中央区富塚町-1933-1
104.46m2(31.60坪)
173,800円(税込)
- 上下水、給湯室、洗面所、トイレついてます。駐車場は4台無料です!
静岡県浜松市中央区萩丘3-1-30
66.29m2(20.05坪)
132,000円(税込)
今日チェックした物件
お急ぎの方はお電話からお気軽にどうぞ!
053-488-8811 営業時間 / 9:00〜18:00 定休日 / 水曜日・日曜日